Seattle Backyard Owners: Unlock Hidden Value Without Selling Your Home! 🌟

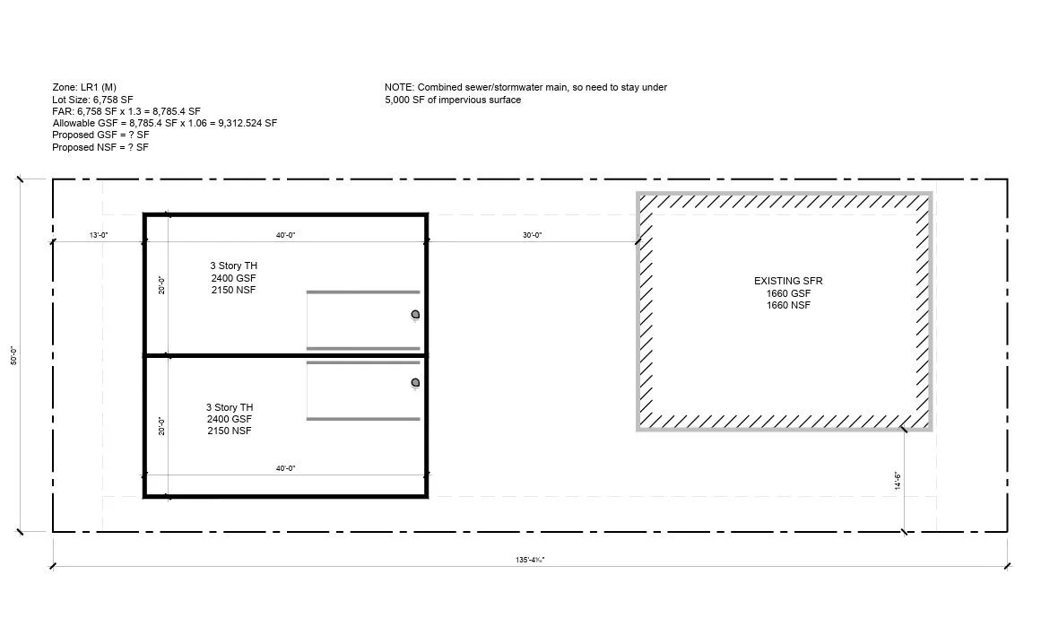
I recently connected with a property owner in Seattle’s Central District who was ready to sell their home off-market.What they didn’t know? They could keep their existing house and build TWO new homes in the backyard.This setup is possible on thousands of properties across Seattle thanks to current zoning opportunities. Whether you want extra income, multigenerational living, or simply more equity in your land — we can help you discover exactly what’s possible on your lot. (Attached is a real example of what this can look like — modern, functional, and value-adding.)Want to know what you could build in your Seattle backyard?Schedule a call on our website — no obligation, just straight answers on your property’s potential.